Рассуждения по строительству дома.

Обсуждения на тему строительства дома
Аватара пользователя
лодырь
Эксперт
Сообщения: 738
Зарегистрирован: 04 окт 2014, 20:40
Откуда:: юг красноярского кра
Благодарил (а): 558 раз
Поблагодарили: 781 раз

Рассуждения по строительству дома.

#41

Сообщение лодырь » 30 янв 2017, 16:26

Я не спорю сруб по прочности выше, землетресение больше 5 баллов держит проверено, только штукатурка треснет. Боковые ветра ураганного типа только крышу сметут, но строить его в одного увольте, да и по тепло экономии он не ахти. А про утепление мерзлыми опилками скажу: у меня в бане гораздо теплее стало, хотя они смерзлись на крыше. А грызуны победимы кварцевателем самодельным, описание помоему на форуме видел, ну или ужика и котяру завезти.
не ошибается тот, кто ни чего не делает

Аватара пользователя
Serj
Администратор
Сообщения: 3828
Зарегистрирован: 10 июн 2014, 19:25
Откуда:: Пенза
Благодарил (а): 3484 раза
Поблагодарили: 3420 раз

Рассуждения по строительству дома.

#42

Сообщение Serj » 30 янв 2017, 16:32

Среднеазиат писал(а): Дима,2 комнаты (спальни) 3×4,5=13,5 кв.м меня вполне устраивают, с/у 2×3=6 кв.м ,холл 2×5=10 кв.м, кухня 4×3=12 кв.м, гостиная 6×4=24 кв.м, тамбур 2×1=2 кв.м. Это к первому рисунку.Меня вполне устраивает.Мне нравятся большие кухни и гостиная,там я провожу основное время,спальня только поспать 13.5 кв.м мне вполне хватает.
вот и получается 30 метров спальни, 20 метров холл/СУ, 40м кухня+гостинная - итого 90 метров.
Вход со стороны фронтона, соответственно конёк вдоль длинной стороны. При угле 22гр и свесах 1метр ширина дома 9,4 метра. Отсюда получаем 9 на 10-11метров. Постарайся уместить проект в такие размеры с входом в короткую стену.
Чудес не бывает!

Аватара пользователя
Среднеазиат
Творец
Сообщения: 2994
Зарегистрирован: 14 июл 2014, 06:28
Откуда:: Тверская область.
Благодарил (а): 2611 раз
Поблагодарили: 2198 раз

Рассуждения по строительству дома.

#43

Сообщение Среднеазиат » 30 янв 2017, 16:35

Я уже думал может свес больше сделать со стороны входа или сделать кровлю от угла дома до входа отдельно от основной кровли.
Хочешь,чтоб было хорошо-сделай сам!!!

Аватара пользователя
Dimention
Творец
Сообщения: 1242
Зарегистрирован: 05 июл 2016, 14:15
Откуда:: Владивосток
Благодарил (а): 784 раза
Поблагодарили: 1863 раза
Контактная информация:

Рассуждения по строительству дома.

#44

Сообщение Dimention » 30 янв 2017, 16:39

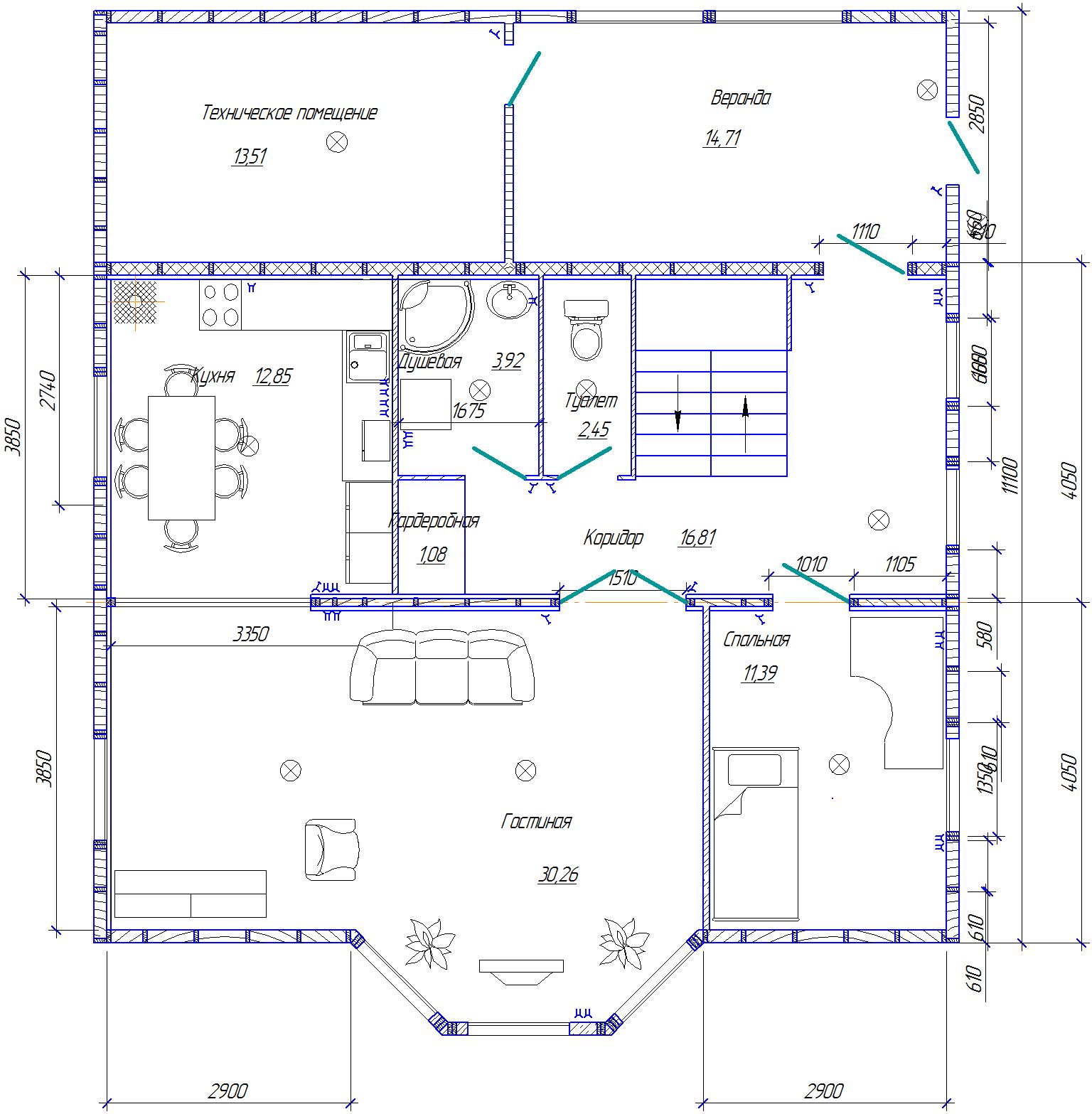
Писал писал и все глюкнуло и не сохранилось...
Погляди вдруг поможет, если объединить санузел и убрать лестницу то на этом месте получается хорошая спальня.
планировка дома.jpg
Не может быть чтоб лапти воду пропускали! Потому что нулевой баланс на счету стимулирует работу инженера.

Аватара пользователя
Среднеазиат
Творец
Сообщения: 2994
Зарегистрирован: 14 июл 2014, 06:28
Откуда:: Тверская область.
Благодарил (а): 2611 раз
Поблагодарили: 2198 раз

Рассуждения по строительству дома.

#45

Сообщение Среднеазиат » 30 янв 2017, 16:42

Дима,огромное спасибо!!!Классный проект!!!Только холл где сделать...
Хочешь,чтоб было хорошо-сделай сам!!!

Аватара пользователя
лодырь
Эксперт
Сообщения: 738
Зарегистрирован: 04 окт 2014, 20:40
Откуда:: юг красноярского кра
Благодарил (а): 558 раз
Поблагодарили: 781 раз

Рассуждения по строительству дома.

#46

Сообщение лодырь » 30 янв 2017, 17:39

Не важно из чего стены, главное чтобы дом гости посещали и дети малые почаще гостили, чтоб дом живым был, а иначе он тюрму старости напоминает и не важно сколько годов хозяевам. А про большую столовую-кухню полностью согласен, надо чтобы места всем за столом хватало, а в зале пусть детвора резвиться, и еще одну спальню желательно по диагонале в другом углу дома от кухни, чтоб место было где совсем малых отдохнуть уложить и застолье шумом и эмоциями не мешало.
не ошибается тот, кто ни чего не делает

Аватара пользователя
Среднеазиат
Творец
Сообщения: 2994
Зарегистрирован: 14 июл 2014, 06:28
Откуда:: Тверская область.
Благодарил (а): 2611 раз
Поблагодарили: 2198 раз

Рассуждения по строительству дома.

#47

Сообщение Среднеазиат » 30 янв 2017, 19:57

А кто какую высоту подпола делал?Мне нужен будет подпол для обслуживания канализационых труб,да и проводку хочу в подполе развести.
Хочешь,чтоб было хорошо-сделай сам!!!

Аватара пользователя
Dimention
Творец
Сообщения: 1242
Зарегистрирован: 05 июл 2016, 14:15
Откуда:: Владивосток
Благодарил (а): 784 раза
Поблагодарили: 1863 раза
Контактная информация:

Рассуждения по строительству дома.

#48

Сообщение Dimention » 31 янв 2017, 00:03

Шамиль, ты туда подпол нырять собираешься каждый день? полметра чтоб провести каналью хватит. Мож и меньше. А вот проводку под полом разводить не целесообразно. Проще внутри по стенам, запаришься разводить иначе.
Не может быть чтоб лапти воду пропускали! Потому что нулевой баланс на счету стимулирует работу инженера.

Аватара пользователя
Serj
Администратор
Сообщения: 3828
Зарегистрирован: 10 июн 2014, 19:25
Откуда:: Пенза
Благодарил (а): 3484 раза
Поблагодарили: 3420 раз

Рассуждения по строительству дома.

#49

Сообщение Serj » 31 янв 2017, 01:07

Dimention писал(а): полметра чтоб провести каналью хватит. Мож и меньше. А вот проводку под полом разводить не целесообразно. Проще внутри по стенам, запаришься разводить иначе.
+100
Чудес не бывает!

Аватара пользователя
Среднеазиат
Творец
Сообщения: 2994
Зарегистрирован: 14 июл 2014, 06:28
Откуда:: Тверская область.
Благодарил (а): 2611 раз
Поблагодарили: 2198 раз

Рассуждения по строительству дома.

#50

Сообщение Среднеазиат » 31 янв 2017, 02:20

Пожалуй 1 метр сделаю,так удобнее мне монтировать,ремонтировать,а то ползай там,как змея.. :biggrin: Проводку тоже там сделаю,сейчас у меня в доме вся проводка в подполе сделана,красота-нет ни коробок,и минимум коробов.Да и разводку труб для воды питьевой удобнее делать.
Хочешь,чтоб было хорошо-сделай сам!!!

Ответить

Вернуться в «Общие строительные вопросы»